© Küchen Leber
PLANUNG
Planung & Montage - alles aus einer Hand.
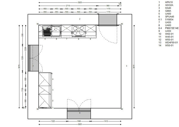
Durchdacht bis ins letzte Detail Nach der Bestandsaufnahme wird Ihre Küche mit einer speziellen Planungssoftware millimetergenau vorgeplant. Bereits zu diesem Zeitpunkt können Sie Ihre Küche als photorealistisches Modell begutachten. Darüber hinaus haben Sie die Auswahl aus einer großen Vielfalt von Materialien.
Der Grundstein zu Ihrer Traumküche sind Ihre persönlichen Wünsche Deshalb klären wir in einem ersten Beratungsgespräch gemeinsam mit Ihnen Ihren Bedarf: • Wollen Sie eine Arbeitsküche oder eine Wohnküche? • Wie viele Personen leben in Ihrem Haushalt? • Brauchen Sie Platz für die Lagerung von Lebensmitteln? • Wie viel Arbeitsfläche, wie viele Schrankeinheiten und welche Elektrogeräte benötigen Sie?
Individuell zusammengestellt Die Einheiten Ihrer Küche werden nur auf Bestellung produziert, so ist Ihre Küche immer ein Unikat. Um Ihnen höchste Qualität und ein faires Preis-Leistungsverhältnis anzubieten, arbeitet Küchen Leber mit Partnern zusammen, die sich in jahrelanger Zusammenarbeit bewährt haben. (Beckermann, Nobilia, Bosch, Gutmann, Siemens, Lechner, Blanco, etc.)